Warren Towers Renovation Construction Update – 9/19/2025
General Project Information
- The first weekday work shift will begin at 7:00 am and end at approximately 3:30 pm, with the second shift beginning at 3:00 pm and ending at 11:00 pm, and the third shift starting at 11:00 pm and ending at 7:00 am. Weekend shifts will start at 7:00 am and end at 5:00 pm.
- The team is currently in the main renovation phase of the project.
- Emergency Contacts:
- Owners Representative – Leftfield Project Management: Corey Davidson – 508-330-8489
- Contractor Representative – Shawmut Design & Construction: Matt Galloway – 617-413-7758
During the Weekend of 9/20
Work planned to take place Saturday 9/20 during the 1st shift and Sunday 9/21 during the 3rd shift
Exterior Work- Tower A
4th-Floor Podium Roofs
- Crews will use the low roofs as a laydown area for tools, supplies and materials.
East and West Façades
- Crews will work on the low roofs, east and west of Tower A.
- Masons will continue with their exterior brick veneer restoration work, selective demolition, installation of restoration anchors, new lintels, and relieving angles.
- Crews will also be adding steel stud framing and sheeting on the exterior walls.
- Crews will be installing new windows on levels 15 through 18.
Front Façade and on Commonwealth Avenue
- Masons will continue with their exterior brick veneer restoration work, selective demolition, installation of restoration anchors, new lintels, and relieving angles.
Rear Façade and Back Alley
- Masons will continue with their exterior brick veneer restoration work, selective demolition, installation of restoration anchors, new lintels, and relieving angles.
- Plumbers will be installing large overhead storm drain piping on the 1st floor of the alley on 3rd shift (Sunday– Thursday).
Upper Roof
- Crews will continue installing steel stub columns and supports for the new penthouse and roof screening.
- Masons will be restoring the brick veneer on the existing north stair and elevator headhouse.

West Podium and Terrace Roofs
- Crews will begin installing a topping slab.

Multipurpose Room Roof
- Mechanical contractors will be installing piping in the new boiler room.
Cummington Mall
(In and around the fenced area)
- There will be daily deliveries of tools, supplies, and materials to be received at the construction loading dock.
- The 2-car personnel and materials hoist way operations are underway.
Cummington Mall West
- Crews from Flett will be excavating and installing the new electrical service in the road on the 3rd Shift (Sunday – Thursday).
Hinsdale Mall
- Crews from Flett will be removing road plates, backfilling and paving on Saturday morning.

- The loading dock has been reopened for deliveries and services. The east exit of the parking garage remains closed; however, the west exit will remain open.
Interior Work
Tower A
- Crews will continue demolition work and will load debris into hampers and transport it to be emptied into dumpsters (located in the construction loading dock).
- Crews will continue grinding the floor slab.
- Survey crews are working on setting up benchmarks and lay out points on each floor.
- Crews will be working on the steel stud framing of the interior partitions and soffits on levels 15 through 18.


- Crews will continue patching the plaster.
- Crews will be installing fire protection, sprinkler risers, and mains.
- Crews will be conducting rough work on HVAC piping, plumbing, and ductwork.

- Crews will continue installing structural steel reinforcements, plates, kickers, and beam penetrations.
- Crews will continue applying spray fireproofing, expanding foam insulation, and firestopping.
- Crews will install windows on levels 15 through 18.
Parking Garage
- Electricians will continue running wiring and conduits throughout the parking garage, 1st, 2nd, and 3rd levels.
- Plumbers will install new water and drain lines in the basement, 1st, 2nd, and 3rd levels.
- Crews will construct the new fuel storage room in the southeast basement level of the parking garage.
- Crews will continue concrete and steel structural repair work in the parking garage, 1st, 2nd, and 3rd floors.


- Sprinkler work on level 3 will be ongoing.
- Masons will be installing block walls in the new main electric room.

- Please observe signage and watch for adjusted parking patterns, cones.
During the Week of 9/22
Exterior Work- Tower A
4th-Floor Podium Roofs
- Crews will use the low roofs as a laydown area for tools, supplies and materials.
East and West Façades
- Crews will work on the low roofs, east and west of Tower A.
- Masons will continue with their exterior brick veneer restoration work, selective demolition, installation of restoration anchors, new lintels, and relieving angles.
- Crews will also be adding steel stud framing and sheeting on the exterior walls.
- Crews will be installing new windows on levels 15 through 18.
- There will be a window delivery for floors 12 through 14.
Front Façade and on Commonwealth Avenue
- Masons will continue with their exterior brick veneer restoration work, selective demolition, installation of restoration anchors, new lintels, and relieving angles.
Rear Façade and Back Alley
- Masons will continue with their exterior brick veneer restoration work, selective demolition, installation of restoration anchors, new lintels, and relieving angles.
- Plumbers will be installing large overhead storm drain piping on the 1st floor of the alley on 3rd shift. (Sunday – Thursday).

Upper Roof
- Crews will continue installing steel stub columns and supports for the new penthouse and roof screening.
- Crews will be placing concrete for knee walks and the mechanical penthouse floor slab.
- Mechanical contractors will be running new services up through the roof into the new Mechanical Penthouse.
- Masonry crews will be restoring existing north stair and elevator headhouse brick veneer.
West Podium and Terrace Roofs
- Crews will be preparing to install the topping slab and parapet.

Multipurpose Room Roof
- Mechanical contractors will continue installing the new boiler room.
Cummington Mall
(In and around the fenced area)
- There will be daily deliveries of tools, supplies, and materials to be received at the construction loading dock.
- The 2-car personnel and materials hoist way operations are underway.
Cummington Mall West
- Crews from Flett will be excavating and installing the new electrical service in the road on 3rd Shift (Sunday – Thursday).
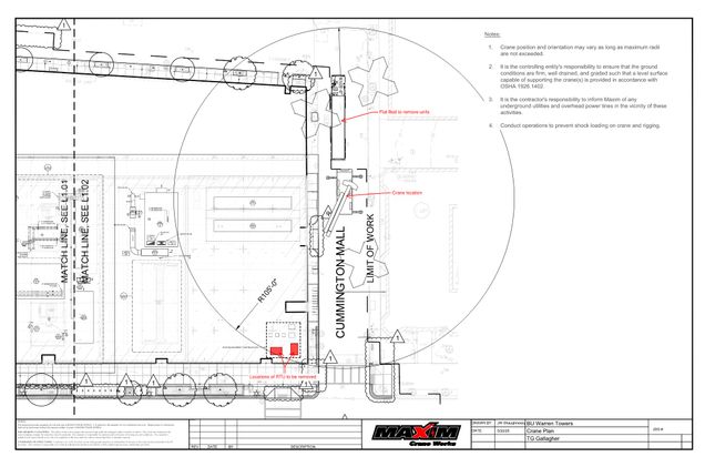
- There will be a crane in use on Tuesday morning to remove HVAC units from the West Terrace, for disposal. BUPD will be onsite to assist with pedestrian and vehicular traffic.

Hinsdale Mall
- A large crane will be set up in the street to hoist concrete to Tower A rooftop on Wednesday, 4:00 AM – 8:00PM.

- The loading dock has been reopened for deliveries and services. The east exit of the parking garage remains closed; however, the west exit will remain open.
Interior Work
Tower A
- Crews will continue demolition work and will load debris into hampers and transport it to be emptied into dumpsters (located in the construction loading dock).
- Crews will continue grinding the floor slab.

- Survey crews are working on setting up benchmarks and lay out points on each floor.
- Crews will be working on the steel stud framing of the interior partitions and soffits on levels 15 through 18.
- Crews will continue patching the plaster.
- Crews will be installing fire protection, sprinkler risers, and mains.
- Crews will be conducting rough work on HVAC piping, plumbing, and ductwork.

- Crews will continue installing structural steel reinforcements, plates, kickers, and beam penetrations.
- Crews will continue applying spray fireproofing, expanding foam insulation, and firestopping.
- Crews will install windows on levels 15 through 18.
Parking Garage
- Electricians will continue running wiring and conduits throughout the parking garage, 1st, 2nd, and 3rd levels.

- Plumbers will install new water and drain lines in the basement, 1st, 2nd, and 3rd levels.
- Crews will construct the new fuel storage room in the southeast basement level of the parking garage.
- Crews will continue concrete and steel structural repair work in the parking garage, 1st, 2nd, and 3rd floors.
- Sprinkler work on level 3 will be ongoing.
- Masons will be installing block walls in the new main electric room.

- Please observe signage and watch for adjusted parking patterns, cones.
Off Site
- Crews are building detailed interior mockups of bathrooms and student rooms to work through each step for schedule efficiencies and constructability.
Future/Notable Tasks
- There will be a delivery and placement on October 4th of the large new fuel oils storage tank which will supply diesel to the new generators.
- New topping slab will be placed at the West Terrace on September 30th.
- New electrical duct banks will be installed in the basement level.
- Crews will begin constructing the new Parking and Transportation offices.
- Metal panel window trim will be installed.
- Crews will conduct reoccurring crane work on Cummington Mall and Hinsdale Mall in the coming weeks.
- There will be handrail alterations in the north and south stairs of Tower A.